SansBerlin Architects
DESIGN AGAINST DEFAULT

Palfreyman Residence
Residential
Residential

Cloverdale Hof
Mixed Use
Mixed Use
SansBerlin exists in opposition to default living, thoughtless design, and environments without intention.
We design against the default.
We design against the default.
X





Palfreyman Residence
Hope, BC
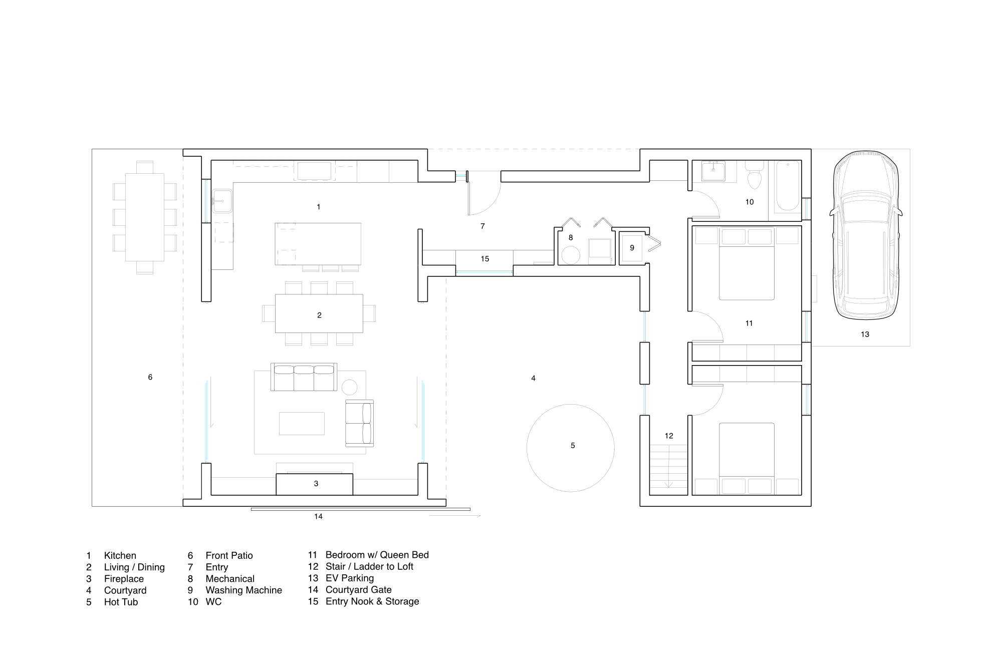
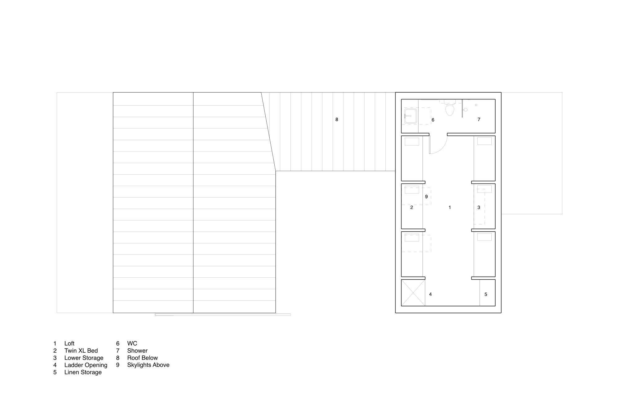
Set within the dense landscape of Sunshine Valley, the Palfreyman Residence rejects the default idea of a singular cabin object placed onto a site.
Instead of one building, the home is divided.
Two simple volumes separate public and private life, creating a courtyard between them, a space that becomes the true center of the project. This move transforms a constrained footprint into an expanded living environment, where interior and exterior dissolve into one continuous experience.
The architecture is intentionally restrained. Linear forms, minimal detailing, and a limited material palette allow the surrounding mountains, trees, and light to take precedence. The building does not compete with its context, it frames it.
The courtyard operates as both threshold and extension. It brings daylight deep into the plan, establishes privacy within a dense subdivision, and redefines the scale of the home beyond its physical limits. What begins as a 1,300 square foot constraint becomes something larger through spatial continuity and openness.
Materially, the project leans into contrast and permanence. Charred cedar cladding and black standing seam roofing give the volumes a quiet weight, allowing them to recede into the landscape while maintaining a distinct identity.
This project is an exercise in reduction.
Fewer moves, executed with precision.
Less building, more space.
Design against the default.
Hope, BC
Set within the dense landscape of Sunshine Valley, the Palfreyman Residence rejects the default idea of a singular cabin object placed onto a site.
Instead of one building, the home is divided.
Two simple volumes separate public and private life, creating a courtyard between them, a space that becomes the true center of the project. This move transforms a constrained footprint into an expanded living environment, where interior and exterior dissolve into one continuous experience.
The architecture is intentionally restrained. Linear forms, minimal detailing, and a limited material palette allow the surrounding mountains, trees, and light to take precedence. The building does not compete with its context, it frames it.
The courtyard operates as both threshold and extension. It brings daylight deep into the plan, establishes privacy within a dense subdivision, and redefines the scale of the home beyond its physical limits. What begins as a 1,300 square foot constraint becomes something larger through spatial continuity and openness.
Materially, the project leans into contrast and permanence. Charred cedar cladding and black standing seam roofing give the volumes a quiet weight, allowing them to recede into the landscape while maintaining a distinct identity.
This project is an exercise in reduction.
Fewer moves, executed with precision.
Less building, more space.
Design against the default.
studio@sansberlin.com
+1.604.904.5001
SansBerlin Architects Inc.
© 2026 SansBerlin
+1.604.904.5001
SansBerlin Architects Inc.
© 2026 SansBerlin